Přeskočit na obsah
NOVÁ POPTÁVKA

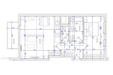
Konstrukce bytových stěn pro YIT

Půdorys bytu, do kterého vyrábíme koupelnový modul se samostatným WC, je řešen tak, že je modul uprostřed bytu. Pokud bychom dodali jen koupelnový modul s WC, museli by se poté v bytě dozdít příčky. Nicméně řešení Prefab nabízí i bytové příčky s kompletní přípravou elektroinstalace, osazenými vypínači, zásuvkami, apod.  

Do projektu RIVI Bachova tedy dodáváme i bytové příčky, které se namontují po instalaci modulu.


Fotogalerie

Sdílet

Může vás zajímat

Zpět na výpis novinek